Progetti

PROGETTO URBANO
Parco lineare di Cerese
Borgo Virgilio (MN) - Italy
CREDITI
Tipo: Concorso di idee
Anno: 2025
Progetto: Emanuele Ortolan, Giorgia Carpi
Visualizzazione: Alessia Bianco
Fotografie da drone: Gianluca Montanini
In molti centri abitati italiani il sistema dei parchi urbani e degli spazi naturali risulta frammentato e scarsamente connesso, soprattutto nelle periferie, dove il verde pubblico è spesso isolato e circondato dalla viabilità carrabile.
Il progetto affronta questa criticità immaginando una rete di mobilità lenta alternativa, capace di valorizzare e interconnettere le dotazioni esistenti attraverso nuovi percorsi protetti e il superamento sicuro delle interferenze con il traffico veicolare. Nel tratto urbano di via Spolverina a Cerese, la proposta prefigura un disegno di rigenerazione urbana e rinaturazione che trasforma un’infrastruttura sovradimensionata in un corridoio ambientale e sociale. L’obiettivo è definire un centro abitato favorendo spostamenti ciclo-pedonali, relazioni sociali, sicurezza stradale, qualità ambientale e rilancio delle attività locali.
La razionalizzazione della viabilità costituisce l’azione preliminare per il passaggio da una “città delle automobili” a una “città delle persone”. Via Spolverina, oggi caratterizzata da un eccesso di corsie, viene ridotta a due corsie da 3,5 m, in continuità con il tratto extraurbano, liberando suolo pubblico da riconvertire progressivamente. L’eliminazione degli incroci a raso, l’inserimento di una mini-rotatoria in corrispondenza di via Michelangelo e la riorganizzazione dello svincolo di via Pirandello riducono significativamente i punti di conflitto e migliorano la leggibilità e la sicurezza della circolazione. Otto attraversamenti pedonali e ciclo-pedonali rialzati, illuminati e alla stessa quota dello spazio pubblico, regolano la velocità dei veicoli (≤50 km/h) e ricuciono la frattura tra nord e sud del tessuto urbano, affermando la priorità di pedoni e ciclisti.
Il nuovo parco lineare diventa elemento paesaggistico e luogo pubblico di aggregazione. La sezione urbana, liberata in gran parte dalla viabilità, ospita marciapiedi continui, un percorso ciclabile bidirezionale di 2,5 m collegato alla ciclovia del Basso Mincio e un sistema di spazi verdi e attrezzati largo circa 10 m. Declivi verdi, sedute lineari, superfici permeabili e materiali sostenibili definiscono una sequenza di spazi flessibili, capaci di accogliere usi ricreativi, sportivi e sociali e di evolvere nel tempo in base agli usi. Il progetto rispetta i vincoli idraulici del canale Paiolo Alto (R.D. 523/1904), senza alterarne la condotta tombata, e utilizza modellazioni del terreno come dispositivi di protezione fisica, acustica e visiva. Sono previste alberature puntuali, sistemi di ombreggiatura leggeri con coperture vegetate e integrazione di pannelli fotovoltaici.
La sostenibilità è garantita da pavimentazioni drenanti, gestione delle acque meteoriche, mitigazione delle isole di calore e da un sistema di illuminazione pubblica a LED ad alta efficienza, integrato con corpi puntuali e lineari per garantire sicurezza, comfort visivo e riconoscibilità dello spazio pubblico.
Il progetto configura così un nuovo asse verde urbano, accessibile e permeabile, capace di innescare una rigenerazione diffusa e duratura.


.
.
.
.
.
.
.

PROGETTO URBANO
Masterplan per il centro di Morgano
Morgano (TV) - Italy
CREDITI
Tipo: Concorso di idee
Anno: 2024
Progetto: Emanuele Ortolan
Visualizzazione: Giulia Bartoli
Fotografia da drone: Federico Gobbato
Il paesaggio di Morgano è caratterizzato da colture agricole innervate da una capillare trama di fiumi e canali ed è marcato dal distendersi delle produzioni di ortaggi, frutteti e Piantate di pioppi.
A questo patrimonio ambientale si aggiungono poi gli specchi d’acqua uniti da lingue di terra, le buse.
Oltre alla Rotonda di Badoere che rappresenta una delle principali polarità urbane dell’area, mulini e caseggiati rurali punteggiano il territorio, mentre chiese, oratori, santuari e numerosi capitelli presidiano la campagna e segnano punti d’incontro e luoghi di comunità.
La proposta interpreta questa condizione di valore paesaggistico-culturale immaginando di riconnettere alcune porzioni di territorio alla frazione di Morgano, immaginata come nuovo punto di approdo per il turismo ciclabile.
Alla scala vasta il progetto individua, in posizione baricentrica rispetto a Morgano, Ongarie e Badoere, un ambito dal carattere rurale e dalla singolare forma del suo perimetro, che può rappresentare quello che può essere ridefinito il Parco Agricolo del Cuore Verde. Questo potrà unire i tracciati naturali esistenti con i nuclei urbani grazie agli itinerari paesaggistici all’interno dei centri abitati come occasione di rilancio turistico e come opportunità per la rinaturalizzazione dei tessuti costruiti.
In questo scenario la Piantata di pioppi non è allora solo una coltura agricola particolare e produttiva, ma è anche misura identitaria del paesaggio che si sviluppa sulla matrice di sei metri per sei come una continua sala ipostila naturale, attraversata dal sole che occupa con opportunismo campi, anse e spazi liberi.
La proposta progettuale sviluppa questa trama regolare attraverso l’uso di pioppi come matrice per la definizione degli spazi pubblici possibili e misura connaturata dei luoghi in cui si insediano, attivando un rapporto logico con questo dispiegarsi geometrico della natura. Per la riqualificazione del centro di Morgano il progetto individua uno scenario strategico di intervento composto da quattro ambiti principali, attuabili nel tempo, dove trovano spazio quattro nodi.. I quattro nodi ricollegano tra loro alcune parti nevralgiche del tessuto urbano, presidiano i percorsi ciclo-pedonali, marcano i punti d’accesso, valorizzano le trame del paesaggio. Ogni nodo diviene infatti la tappa di un percorso con funzioni pubbliche pensate per i bisogni della comunità e per la promozione delle potenzialità dei luoghi.


.
.
.
.
.
.
.

PAESAGGIO
Sculture naturali
Parma (PR) - Italy
CREDITI
Tipo: Progetto preliminare
Anno: 2024
Progetto di paesaggio: Emanuele Ortolan
Visualizzazione: Giulia Bartoli
Negli ultimi anni, le sfide poste dal cambiamento climatico, le crisi energetiche e il bisogno di ridurre le emissioni hanno messo in evidenza la necessità di lavorare sugli aspetti ambientali legati al contesto urbano, evidenziando la necessità di azioni di rinaturazione con l’obiettivo di promuovere una transizione ecologica.
In questo contesto le politiche europee sono concentrate ormai da diversi anni su strategie volte al raggiungimento della neutralità climatica, della sostenibilità ambientale e della vivibilità della città.
In Europa, dal 1994 al 2020, le European Conferences On Sustainable Cities marcano la linea d’azione per le politiche urbane in tema di sostenibilità verso un miglioramento della qualità dell’ambiente con l’obiettivo di ristabilire le relazioni umane, tra persone e comunità, con i processi naturali degli ecosistemi, oltre alla più comune attenzione al ripristino della salute biofisica.
La Nuova Carta di Lipsia avanza nuove sfide globali relative al cambiamento climatico, alla perdita di biodiversità, alla scarsità di risorse, ai cambiamenti demografici, alle pandemie e alle economie in rapido cambiamento proponendo tre interessanti modelli urbani: la città giusta, la città verde e la città produttiva.
Recentemente, nel 2022, è stata redatta e firmata dai rappresentanti dei governi presenti all’83a sessione del Comitato UNECE- Commissione economica per l’Europa delle Nazioni Unite, la Dichiarazione di San Marino, ossia una serie di principi per la progettazione urbana e l’architettura sostenibile e inclusiva.
L’impegno è rivolto alla realizzazione di infrastrutture urbane e città sostenibili, sane, socialmente inclusive, climaticamente neutre e circolari.
Questo documento intende, tra i numerosi intenti, favorire l’efficienza delle risorse e la circolarità per limitare l’uso di energia, promuovere il rispetto della natura, dei sistemi e dei processi naturali attraverso una progettazione che rispetti le piante, gli animali, gli altri organismi e gli habitat naturali, oltre a sostenere la neutralità climatica attraverso la progettazione e la riqualificazione urbana.
La necessità di introdurre la natura nei processi di gestione, trasformazione e recupero della città è quindi un tema ormai ampiamente verificato.
Il concetto di rinaturazione compare anche all’interno del Green City Approach, un programma che mira a raggiungere il benessere, l’inclusione sociale e lo sviluppo delle città.
Obiettivi raggiungibili attraverso l’elevata qualità ambientale, la circolarità delle risorse, la mitigazione e l’adattamento al cambiamento climatico. Analogamente l’Unione Europea si sta impegnando per definire le priorità con lo scopo di ripristinare gli ecosistemi attraverso la Strategia per la biodiversità al 2030. La riscoperta e la messa in valore dei caratteri del paesaggio e l’importanza di riportare la natura nelle città, ampiamente riconosciuta e legata a benefici di carattere sociale, economico ed ecologico, diviene quindi oggi un’operazione centrale per ristabilire una relazione tra i centri urbani, la periferia e la campagna. Con questa chiave di lettura il progetto di paesaggio diviene uno strumento importante anche per la progettazione spaziale delle infrastrutture viarie. Con quest’orizzonte è stato quindi sviluppato un progetto di paesaggio per il nodo viabilistico che smista il traffico tra Strada Traversetolo, Via Pertini, Via Gonella e Via Lama. Il progetto, dal punto di vista morfologico, prefigura un declivio assimetrico dalle pendenze delicate, sulla cui sommità sono scolpite 7 collinette su cui si innesta un sistema capillare di 6 alberi ad alto fusto di Pyrus Calleryana Chanticleer dai colori vividi e mutevoli che scandiscono l’incedere delle stagioni.
Lungo tutto il perimetro circolare della rotatoria si alternano, secondo cerchi e semicerchi concentrici 3 differenti livelli di arbusti perenni a foglia caduca e sempreverdi caratterizzati da abbondanti fioriture colorate che si avvicendano dalla primavera all’autunno inoltrato. Si tratta di una selezione di piante perenni con fioriture appariscenti che coprono un lungo periodo di interesse e, per caratteristiche simili a quelle delle piante mediterranee, sono molto resistenti alla siccità e contemporaneamente si adattano alle condizioni climatiche più rigide. La prima fascia, che si estende su tutto il perimetro è costituita da specie di Aster Novi-Belgii e Ballota Pseudodictamnus (30/40 cm). La seconda e terza fascia che hanno uno sviluppo semicircolare sono composte rispettivamente da Stipa Tenuifolia, Pennisetum Alopecuroides l’una (50/60 cm) e Muhlenbergia Capillaris, Euphorbia Characias, Rudbeckia Hirta l’altra (90/120 cm). Per la restante superficie a verde il progetto immagina un manto erboso soffice di 5/10 cm costituito dalle specie perenni di Verbena Hybrida e Lippia Nordiflora Canescens. Queste, oltre a garantire una gradevole fioritura da aprile a ottobre, attirano, grazie alla seconda, insetti impollinatori sostenendo azioni concrete per l’ecosistema.




.
.
.
.
.

PROGETTO URBANO
Rigenerazione urbana di Piazza Papa Giovanni XXIII
Gorgonzola (MI) - Italy
CREDITI
Promotore: Città di Gorgonzola
Tipo: Concorso di idee
Anno: 2024
Team di progetto: Giorgia Carpi, Andrea Fanfoni, Emanuele Ortolan, Antonio Villa
Visualizzazione: Antonio Villa
Il progetto di rigenerazione di Piazza Papa Giovanni XXIII immagina di creare le condizioni affinché lo spazio pubblico centrale per le funzioni di valore socio-culturale dell'area possa assumere il carattere di un luogo in cui sia possibile svolgere attività collettive per tutte le età in sicurezza e divertimento. I parcheggi sono limitati ai due lati esterni della piazza, liberando completamente dall'auto gli ingressi agli edifici pubblici. Nell'area ovest, tra gli ingressi dell'oratorio, della Palazzina delle associazioni e della Scuola dell'Infanzia, il progetto prevede di collocare una grande seduta per i genitori in attesa dei figli e un'area gioco all'interno di quello che è stato definito il “Bosco Ludico”.
Questa si articola come un'area verde piantumata con alberi dove sono state collocate attrezzature da gioco all'aria aperta.
Sul lato opposto, la centralità del cortile della chiesa di San Carlo è invece rafforzata dall'introduzione di un elemento scultoreo che include la “grande quercia” esistente, assunta come elemento fondante dell'organizzazione spaziale e comunitaria di questo luogo.
Il “Podio della Comunità” è concepito come un luogo di incontro attorno alla grande quercia esistente.
La quercia diventa così un simbolo comunitario attorno al quale scandire i tempi della vita collettiva, civile e religiosa.

.
.
.
.
.
.
.
.
.
.

ADDIZIONE
Ricomposizione e ampliamento del Rifugio Giorgio Graffer al Grostè
Madonna di Campiglio (TN) - Italy
CREDITI
Promotore: SAT - Società Alpinisti Tridentini
Tipo: Concorso di progettazione
Anno: 2024
Progetto architettonico: Lorenzo Faroldi/Reload Architecture, Emanuele Ortolan
Strutture: Edoardo Poletì/H+ Architettura S.r.l.
Impianti: Marco Sampietri/Costel Progettazioni
Visualizzazione: Giulia Bartoli
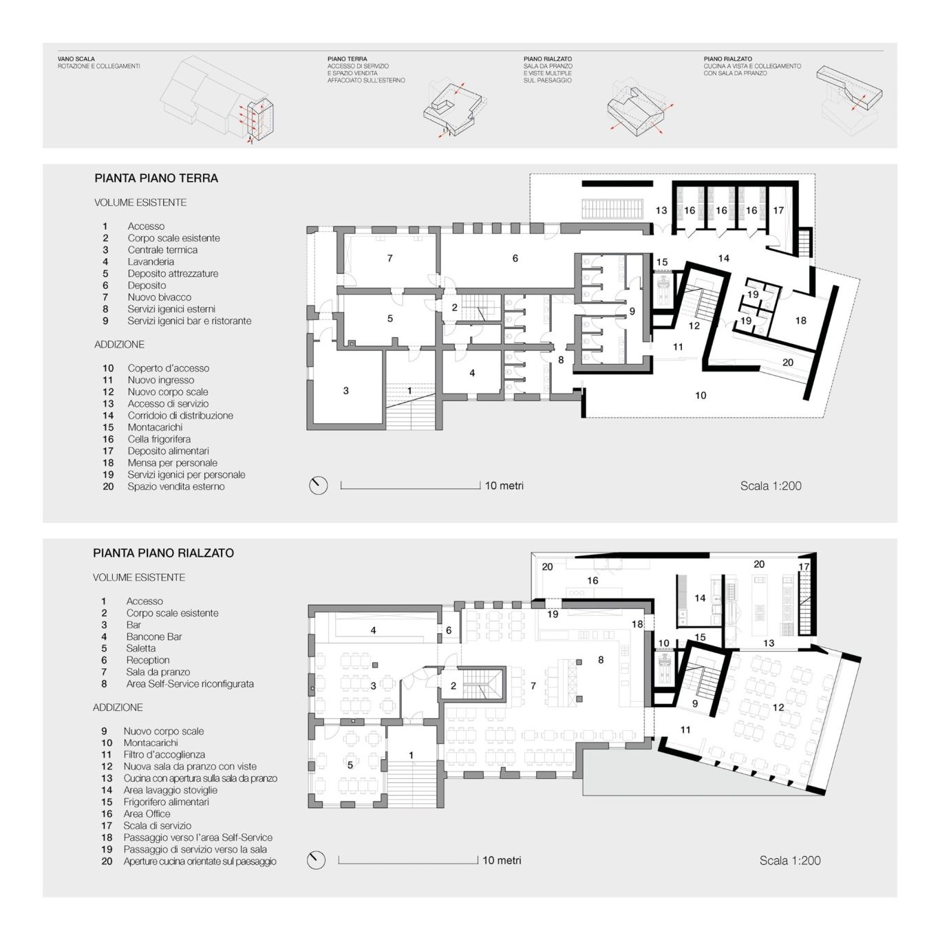
L'ampliamento del Rifugio Graffer rappresenta una sfida articolata, in un sistema paesaggistico particolarmente pregevole e allo stesso tempo estremamente fragile.
II progetto si divide in due parti: una di adeguamento della struttura esistente e una di ampliamento degli spazi destinati alla ricezione e alla ristorazione in risposta alle mutate esigenze che si presentano nel corso della stagione invernale. l’ipotesi avanzata è stata concepita nel rispetto dei principi della sostenibilità, con l'obiettivo di minimizzare l'impatto ambientale.
Per la realizzazione della porzione in ampliamento sono stati immaginati materiali ecocompatibili e a basso impatto ambientale, facilmente trasportabili e assemblabili anche alle alte quote.
L'utilizzo prevalente di materiali naturali ha altresì l’obiettivo di mantenere l’immagine complessiva del manufatto in armonia con il contesto paesaggistico circostante, riducendo l'impronta ecologica dell'edificio.
Il progetto è stato ideato partendo dai vincoli imposti dai confini catastali e dall’assetto dell’edificio preesistente. allo stesso tempo la strada di accesso, proveniente da monte, che lambisce il fronte principale dell’edificio è stata conservata per ridurre al minimo gli interventi di sbancamento sul piccolo rilievo ivi presente. L’addizione proposta prevede una forma e una volumetria compatibili con le caratteristiche architettoniche dei rifugi montani tradizionali, assecondata dall’utilizzo di cromie e materiali adeguati all'ambiente alpino circostante. Per il piano terra il progetto immagina un basamento in cemento armato a vista, mentre per il piano rialzato è stata ipotizzata una struttura in acciaio rivestita internamente di legno d’abete chiaro ed esternamente da una pelle in scandole di alluminio zincato dai toni antracite. L’articolazione planivolumetrica dell’ampliamento è stata concepita partendo dal volume del nuovo vano scala che si pone come elemento di raccordo tra tutti gli spazi comuni del rifugio.
La posizione scelta, sul lato est, risulta essere baricentrica tra esistente e nuovo e permette di collegare agevolmente, senza importanti variazioni d’assetto, tutti piani della zona notte sfruttando la posizione delle precedenti uscite di emergenza. È stata ritenuta interessante, oltre che utile a consente alle aperture dei piani primo e secondo di ricevere illuminazione naturale, la rotazione del vano di 15° rispetto al fronte dell’edificio.
Il vano scala diventa quindi un elemento fortemente caratterizzante e identitario che funziona come cerniera, o asse compositivo, attorno al quale si attestano i nuovi volumi annessi. Sul fronte principale, a sud, in prossimità del basamento del nuovo corpo scala, il progetto immagina di inserire un nuovo punto di accesso sottolineato da un coperto rettilineo che risulta essere oltre che elemento funzionale per il riparo delle persone, un legame visivo tra i volumi preesistenti e quelli nuovi. Dal punto di vista delle funzioni, al piano terra la proposta prevede un punto vendita affacciato sugli spazi esterni.
A questo si aggiungono l’inserimento di vani a servizio dell’area ristorazione, celle frigo, magazzini e locali ad uso dei dipendenti come la sala mensa ed i servizi igienici a loro riservati. Particolare rilevanza è stata data alla funzionalità di questo livello, infatti l’accesso ai locali di servizio avviene dal lato posteriore e risulta essere particolarmente agevole per lo stazionamento e movimento di mezzi di trasporto e movimentazione di transpallet e merci, anche rispetto all’inserimento di un montacarichi.
Il piano rialzato è invece caratterizzato da un volume a doppia altezza, con tetto a falde e capriate lignee, ruotato come il vano scale, in cui si trova la sala ristorante intersecata da volume parallelepipedo in cui sono ricavati gli spazi per la preparazione dei pasti che comprendono preparazione, lavaggio e office. in questo modo la nuova sala ristoro con oltre 60 posti a sedere risulta essere in continuità rispetto a quella esistente e, attraverso un gioco di aperture e bucature, offre straordinarie vedute sul paesaggio circostante.


.
.
.
.
.
.
.
.
.
.

PROGETTO URBANO
Riqualificazione di Viale della Rocca
Scandiano (RE) - Italy
CREDITI
Promotore: Comune di Scandiano
Tipo: Concorso di idee
Anno: 2023
Team di progetto: Giorgia Carpi, Emanuele Ortolan, Antonio Villa
Visualizzazione: Alessandro Benvenuti, Antonio Villa
La proposta di rigenerazione dell'area intorno alla Rocca dei Boiardo individua due livelli di intervento per la prefigurazione di un centro abitato verde e confortevole: il disegno urbano della viabilità con la riorganizzazione dei parcheggi, e la rigenerazione e rinaturazione dello spazio pubblico sui fronti sud ed est. Il progetto si compone di due livelli di intervento che hanno l’obiettivo di ripristinare l’immagine e la memoria storica dell’area: uno alla quota della città e uno alla quota ribassata del vallo. Il primo livello, quello alla quota della città prende forma tra Via Matteotti e Via Garibaldi come una piazza lineare pedonale alberata.
Il secondo livello di intervento, quello alla quota ribassata del vallo, immagina un nuovo parco verde delle bassure accessibile e attraversato da un percorso ciclo-pedonale permeabile in calcestre stabilizzato, perimetrale alla cortina muraria della Rocca che segue il sedime dell’antico fossato.
Il progetto immagina una piazza lineare, come elemento di cerniera tra la Rocca, via Cesari e il sistema scolastico, favorendo, nelle ore diurne, l'utilizzo da parte di studenti e insegnanti dello spazio pubblico antistante il Monumento.
Sul sedime della nuova piazza lineare della Rocca il progetto immagina di distribuire alcuni elementi.
Da ovest a est il primo è un elemento scultoreo di richiamo alla memoria dell’antico lavatoio pubblico che in passato rappresentava un luogo di socialità e comunità.
Proseguendo, il secondo elemento è rappresentato da una lunga seduta lineare in cemento modellato parallela alla Rocca e ombreggiata dal doppio filare di alberi che costituisce anche un elemento di filtro tra la strada e gli istituti scolastici che si affacciano sullo spazio pubblico.
Superato il ponte d’accesso al Monumento, uno spazio pubblico circolare viene dotato di sedute che ne assecondano l'andamento.
Questo può diventare un’area eventi per la comunità e un luogo per attività ludiche e motorie direttamente fruibile in sicurezza dalle scuole. Il disegno di paesaggio mira a ridurre le isole di calore e a mitigare gli effetti del cambiamento climatico, favorendo al contempo la permeabilità del suolo e il riequilibrio ecologico dell'ambiente. Lo fa introducendo tre livelli di vegetazione: le alberature ad alto fusto di Carpinus betullus presenti sulla piazza lineare e lungo Via Matteotti, le trame arbustive e aromatiche poste in fregio al fronte sud della Rocca e le piattaforme erbose calpestabili a lato dei pendii consolidati del vallo.


.
.
.
.
.
.
.
.
.
.

PROGETTO URBANO
Rigenerazione urbana degli spazi pubblici di Lesignano de' Bagni e Santa Maria del Piano
Lesignano de' Bagni (PR) - Italy
1° Premio
CREDITI
Promotore: Comune di Lesignano de' Bagni
Tipo: concorso di progettazione in 2 fasi
Anno: 2023
Team di progetto: Giorgia Carpi, Andrea Fanfoni, Emanuele Ortolan
Visualizzazione: Andrea Fanfoni
La proposta individua tre aree principali dove trovano spazio tre nodi in cui concentrare gli interventi di una rigenerazione urbana possibile per la prefigurazione di centri abitati verdi, accessibili e accoglienti.
I tre nodi ricollegano tra loro alcune parti nevralgiche del tessuto urbano, presidiano i percorsi ciclopedonali esistenti, marcano i punti di accesso al territorio comunale, valorizzano punti cospicui e trame del paesaggio favorendo un sistema di mobilità alternativa a quella viabilistica attuale, laddove possibile.
A Lesignano de’ Bagni, capoluogo del territorio comunale il progetto immagina di mettere a sistema due polarità del tessuto urbano consolidato, Piazza IV Novembre e Piazza Marconi, riconnettendole attraverso un percorso ciclo-pedonale protetto lungo via Monsignor Angelo Triani.
Il nuovo sistema di spazi pubblici riconnessi potrà così costituire un nuovo asse di collegamento rivolto al paesaggio, tra il centro storico di Lesignano e la Val Parma.
In questo modo si apre un nuovo scenario di relazioni urbane con la Chiesa di San Michele, l’impiantistica sportiva di Via del Registro, fino a riconnettersi, percorrendo la ciclabile raggiungibile da Via della Bassa, al Parco e all’edificio delle Terme, oggi importanti luoghi per la comunità.
In Piazza Marconi invece il progetto, partendo dall’eliminazione quasi totale degli stalli che potranno essere in parte ricollocati su via Triani, propone un miglioramento dell’accessibilità alle varie quote dello spazio pubblico, l’inserimento e la valorizzazione di elementi verdi e vegetali per un miglioramento delle caratteristiche ambientali del luogo e una ricucitura con gli spazi commerciali posti al di sotto della sala consigliare, sullo stesso livello della piazza, con ovvie e positive ricadute economiche.
In Piazza IV Novembre il progetto immagina di suddividere l’area in due porzioni.
La prima, rivolta verso la chiesa potrà mantenere le alberature esistenti e vede l’organizzazione di sei stalli auto e di una fermata delle autolinee dotata di banchina.
La seconda, adiacente al tessuto urbano sedimentato, prevede una pavimentazione in pietra di Luserna che prosegue anche su Via Argini Sud consentendo un cambio di pavimentazione favorendo, anche attraverso un piano stradale rialzato, il rallentamento delle vetture nel tratto di restringimento e la percezione dell’ingresso nel centro abitato.
Nella frazione di Santa Maria del Piano invece il progetto immagina, attraverso una razionalizzazione degli stalli e della viabilità interna, di liberare dalle autovetture Piazza Salvo D’Acquisto e definire un nuovo spazio pubblico protetto per la comunità che rappresenti anche un elemento segnaletico di accesso al territorio comunale.
Il nuovo parcheggio, posto sul lato sud della piazza, con viabilità interna a senso unico e ingresso singolo da Via Molinazzo, ridotto e integrato nel paesaggio grazie alla piantumazione di 10 alberi ad alto fusto di Quercus Ilex potrà infatti contenere 18 stalli per autovetture, di cui due per persone con ridotta capacità motoria.
La quota di parcheggi attuale (33) potrà essere raggiunta mettendo a sistema e ricollegando, attraverso percorsi pedonali protetti, i due parcheggi situati a poche decine di metri su Via Molinazzo che contano una capacità totale di oltre 50 stalli auto. Un sistema di muri perimetrali, interrotti da aperture, varchi e passaggi, completato da una copertura in acciaio Corten definisce uno spazio pubblico di aggregazione sociale per la frazione e al contempo riordina l’edicola riposizionandola in prossimità di Via Argini Nord, in corrispondenza della nuova pensilina coperta per le autolinee.
L’esito è un vero e proprio chiostro pubblico per il tempo libero e le feste che rappresenta anche un punto di approdo e presidio per il territorio, oltre a un crocevia per la riattivazione di alcune importanti relazioni con l’intorno urbano e soprattutto con la Chiesa, il campo sportivo, Villa Lanfranchi, l’alveo del torrente e l’impiantistica delle Piscine Molinazzo oltre che con il capoluogo, raggiungibile percorrendo la ciclopedonale a lato della Strada Provinciale.































